The Laurel
Explore the versatility of “The Laurel” floorplan, featuring an open-concept main floor, mudroom off the garage, and a spacious great room with an entertainer’s kitchen. Elevate productivity with a second-floor pocket office, loft and enjoy the convenience of second-floor laundry. Tailor the space to your needs with optional fourth bedroom and main floor den to create a stylish and functional home that suits your lifestyle.
Townhomes – Smart & Stylish Features Include:
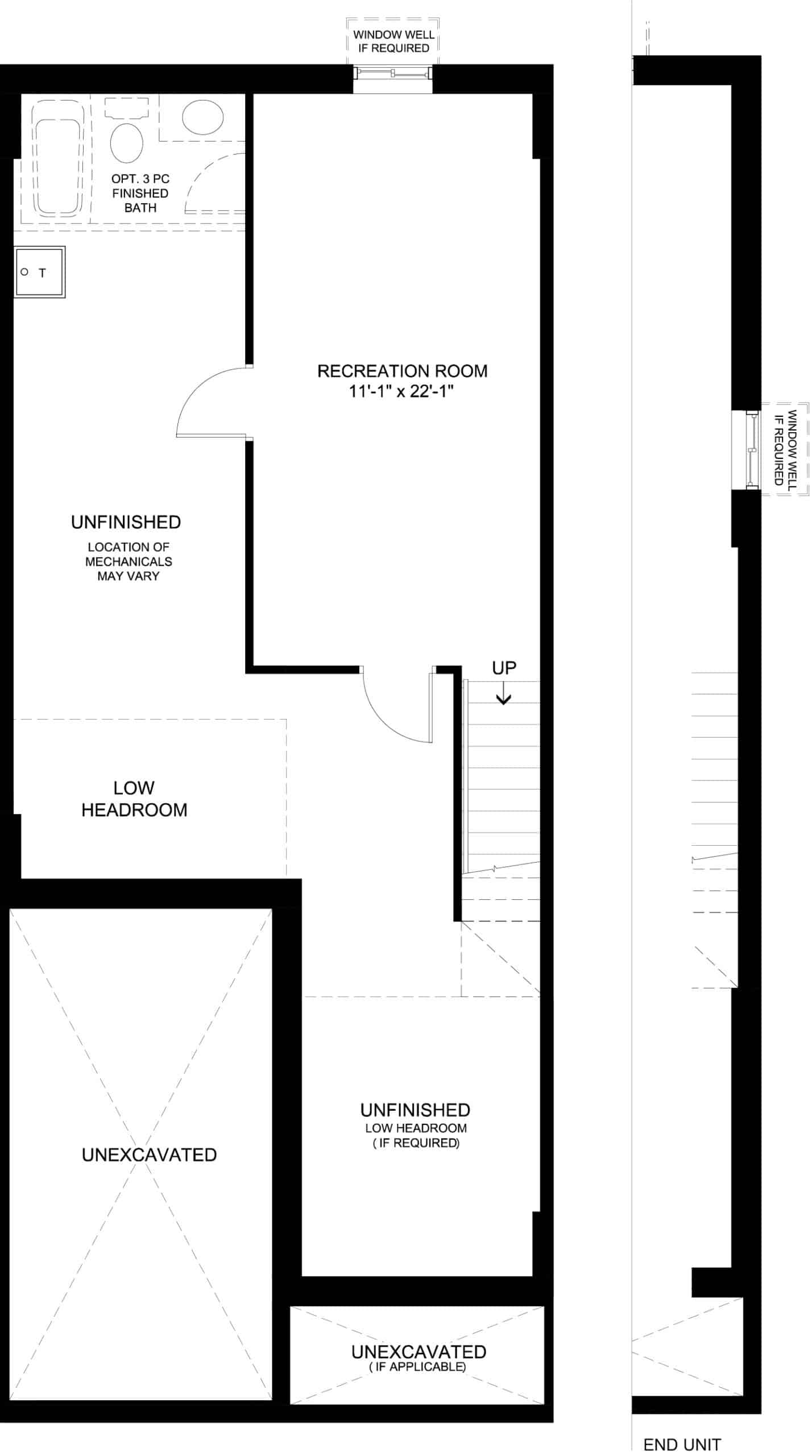
- Finished Basement Rec Room
- Wood Composite Core Flooring on Ground Floor
- 9’ Smooth Ceilings on Ground Floor
- Quartz Countertops in the Kitchen
- + More












































