The Alder
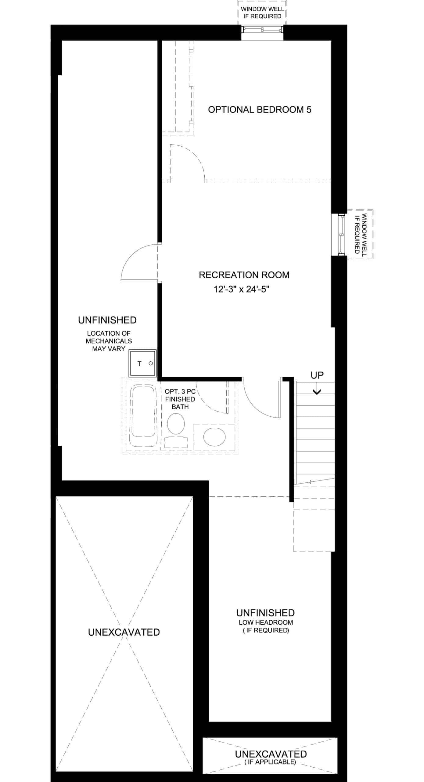
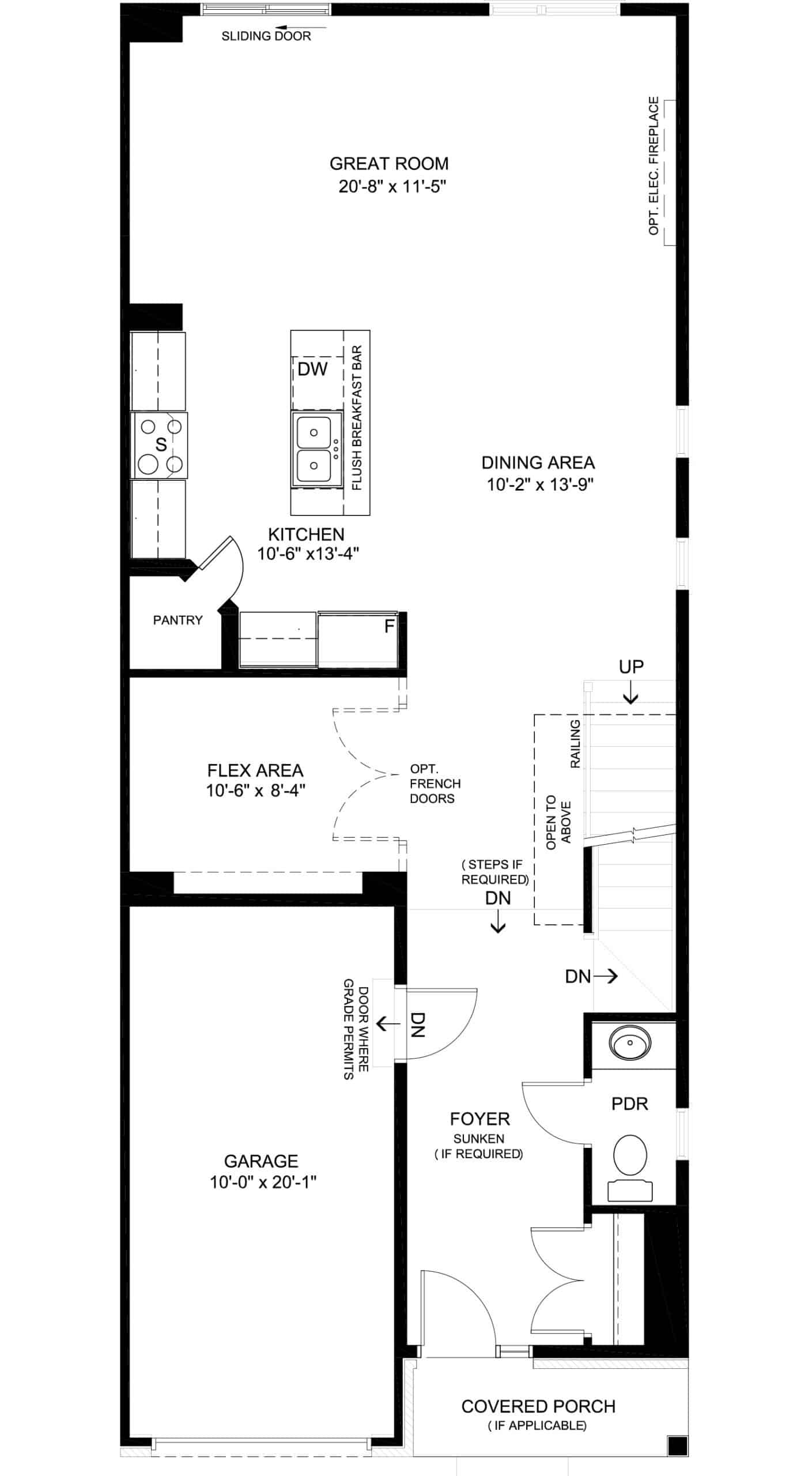
Immerse yourself in the charm of “The Alder” floorplan, offering four bedrooms with an optional fifth bedroom in the basement. The open-concept main floor seamlessly integrates a stylish kitchen with a large walk-in pantry, a spacious foyer, and a versatile flex area that can be transformed into a home office, kid’s playroom, or adapted to your unique preferences. Revel in the luxury of a spacious ensuite and master bedroom walk-in closet, paired with the practicality of second-floor laundry, creating a harmonious blend of comfort and functionality.
Lot Premiums applicable on lots in block 69.
Townhomes – Smart & Stylish Features Include:
- Finished Basement Rec Room
- Wood Composite Core Flooring on Ground Floor
- 9’ Smooth Ceilings on Ground Floor
- Quartz Countertops in the Kitchen
- + More













